Kopfzeile

close

Kontakt

Forchstrasse 145
Postfach 331
8132 Egg

Öffnungszeiten

Mo: 08.30 - 12.00 und 14.00 - 18.00 Uhr
Di: 08.30 - 12.00 Uhr
Mi: 08.30 - 12.00 und 14.00 - 16.30 Uhr
Do: 08.30 - 12.00 Uhr
Fr: 07.00 - 14.00 Uhr

Inhalt

Schulraumplanung

11. Februar 2022

Der Gemeinderat Egg hat beschlossen, dem Souverän im Sommer einen Planungskredit für die Erweiterung der Schulanlage Bützi vorzulegen. Es handelt sich dabei um den ersten grossen Baustein der neuen Schulraumplanung.

Der Gemeinderat Egg hat die Ergebnisse der Machbarkeitsstudien zur Schulraumplanung analysiert. Er stellt fest, dass die unter Einbezug der Bevölkerung entwickelte Schulraumstrategie umsetzbar ist. Der Gemeinderat will die Schulraumstrategie schrittweise umsetzen. Weiterhin an erster Stelle steht der zusätzliche Schulraum in Esslingen, über den die Gemeindeversammlung im Sinne einer «Sofortmassnahme» bereits im März 2022 befinden kann.

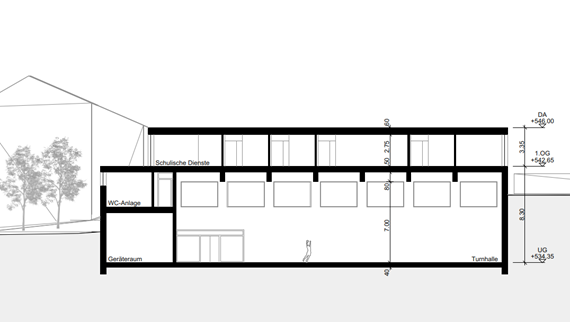
Die im Herbst 2021 öffentlich präsentierte Etappierung der weiteren Projekte erachtet der Ge-meinderat weiterhin als sinnvoll. Er hat beschlossen, dem Souverän als erstes grosses Projekt eine Erweiterung der Schulanlage «Bützi» zu unterbreiten. Im «Bützi» soll ein Mehrzweckge-bäude entstehen, welches sowohl durch die Primarschule, die Tagesstrukturen als auch durch die Musikschule genutzt werden kann. Ein weiteres Element des Projekts ist eine Doppelturn-halle, welche für die Bedürfnisse der Schule und der Vereine konzipiert werden soll.
Abstimmung über Projektierungskredit im Juni Die Abstimmung über den Projektierungskredit zur Erweiterung der Schulanlage «Bützi» wird voraussichtlich an der Gemeindeversammlung im Juni 2022 stattfinden. Bis im Frühjahr wird der Gemeinderat unter Beizug der spezialisierten Planungsfirma Metron AG eine entsprechende Vorlage ausarbeiten. Diese wird der Bevölkerung im Rahmen einer Informationsveranstaltung im Frühsommer näher vorgestellt werden.

Nach dem «Bützi»-Projekt werden die Stimmberechtigten voraussichtlich über die Erweiterung der Schulanlage «Zentrum» befinden können. Bevor der Gemeinderat über eine Vorlage zum Standort «Zentrum» entscheidet, wird er noch einmal das Gespräch mit verschiedenen An-spruchsgruppen suchen, um die Standortfrage der Kindergärten zu thematisieren.

Hier finden Sie die den Kurzbericht zur Machbarkeitsstudie.
 

Begleitgruppe Schulraumplanung Egg
 

7. Arbeitssitzung vom Dienstag, 9. Dezember 2021
Bulletin

Egger Schulraumstrategie ist umsetzbar

Die Begleitgruppe Schulraumplanung Egg hat sich an ihrer Sitzung vom Dienstag 9. Dezember 2021 mit den Machbarkeitsstudien zur Schulraumstrategie befasst. Die Ergebnisse zeigen, dass der Standort Bützi genügend Spielraum für unterschiedliche Lösungen bietet, während im Zentrum nur eingeschränkte Möglichkeiten bestehen. Dennoch kann die beschlossene Strategie umgesetzt werden und bereits nächstes Jahr soll der Souverän über die Sofortmassnahmen in Esslingen sowie einen Planungskredit für die erste Bauetappe befinden können.

Planerin Rebekka Huber fasste die Ergebnisse der Machbarkeitsstudien für die verschiedenen Schulstandorte in Egg zusammen. Bei der Schulanlage Bützi zeigt sich, dass die Schulraumstrategie sehr gut umsetzbar ist. Für die Neubauten «Tagesstrukturen» und «Doppelturnhalle» (1. Etappe) sowie den Neubau als Ersatz des heutigen Provisoriums (3. Etappe) sind verschiedene Lösungen möglich. Auch eine Aufteilung auf die erste und die dritte Etappe der Schulraumplanung ist gut machbar.

Bei der Schulanlage Zentrum ist die Situation komplexer. Auf dem Kernareal können keine zusätzlichen Kindergärten untergebracht werden. Ausserdem müssen die Bauarbeiten bei laufendem Betrieb stattfinden, ohne die Sicherheit der Kinder zu gefährden. Diese Einschränkungen haben die Projektgruppe dazu bewogen, die neuen Kindergärten in den hinteren Bereich der Fussballwiese an den Rand des Areals zu verlegen. In der Begleitgruppe wurde diese Massnahme unterschiedlich beurteilt. Während die einen den Verlust einer Sportfläche bedauerten, begrüssten andere Gruppenmitglieder ein abgegrenztes Kindergarten-Areal mit viel Grünfläche.

Erste Bauten in Esslingen, Bützi und Zentrum

Im Rahmen der Machbarkeitsstudien wurden auch die Kosten detaillierter berechnet. Während die Kostenschätzung im Bützi bestätigt wurde, muss im Zentrum aufgrund der schwierigen Rahmenbedingungen mit Mehrkosten gerechnet werden. Wegen der veränderten Ausgangslage im Zentrum wurde die Projektplanung leicht angepasst. Nach den Sofortmassnahmen in Esslingen sollen in der ersten Etappe (Umsetzung 2023-2026) die Tagesstrukturen und die Doppelturnhalle im Bützi erstellt werden. Neu kommt ebenfalls in dieser Etappe der Doppelkindergarten im Zentrum dazu. In einer zweiten Etappe (2027-2031) sind die weiteren Neubauten im Zentrum vorgesehen und die dritte Etappe (2032-2036) umfasst weitere Neubauten im Bützi sowie in Esslingen.

«Ohnehin-Kosten» müssen berücksichtigt werden

Finanzvorstand Erich Haller präsentiert der Begleitgruppe die Auswirkungen der ersten Etappe auf die Finanzplanung der Gemeinde. Sollte sich der Souverän für die Umsetzung mit Bau-Investitionen von rund 21 Millionen Franken entscheiden, würde ab 2027 (d.h. ab dem Zeitpunkt der Nutzung des Schulraums und der Turnhalle) die Erfolgsrechnung der Gemeinde mit insgesamt 1.7 Millionen Franken jährlich belastet. Dies umfasst die reinen Abschreibungen von ca. 0.6 Millionen für die Neubauten sowie ca. 1.1 Millionen für die ordentliche Bewirtschaftung.

Der Finanzvorstand wies darauf hin, dass aus finanzieller Sicht bei allen Investitionsentscheiden die «Ohnehin-Kosten», welche für die Sanierung von bestehenden Liegenschaften anfallen (sofern auf Neubauten verzichtet wird) zu berücksichtigen und einem Neubau gegenüberzustellen sind. Ausserdem handle es sich bei der Schulraumplanung um ein Generationenprojekt mit einer sehr langen Nutzungsdauer, was entsprechende Investitionen erfordere. Die Finanzierungsfrage sorgte in der Begleitgruppe erwartungsgemäss für Diskussionen. Einig war man sich in der Tatsache, dass die Finanzierung des neuen Schulraums letztlich im ordentlichen politischen Prozess geklärt werden muss.

Sämtliche Inputs der Begleitgruppe zu den Machbarkeitsstudien sowie zum geplanten Prozess wurden protokolliert und auf einer Liste zu Handen der Projektgruppe und des Gemeinderats zusammengestellt. Die Punkte werden in geeigneter Form in die weitere Planung und Umsetzung der Projekte einfliessen.

Begleitgruppe macht längere Pause

Mit dem Abschluss der Machbarkeitsstudien ändert sich der Fokus der Schulraumplanung von der strategischen Gesamtsicht hin zu den konkreten Projekten der ersten Bauetappe. Die Begleitgruppe macht deshalb eine längere Pause. Bevor die Umsetzung der zweiten Etappe startet, wird sich die Gruppe zu einer Strategieüberprüfung wieder treffen. Im Namen des Gemeinderats und der Projektgruppe bedankte sich Christoph Domeisen bei den Teilnehmenden für ihr grosses Engagement zu Gunsten der Schulkinder von Egg.

Vor dem Hintergrund der positiven Erfahrungen mit der Mitwirkung der Bevölkerung sollen bei der Umsetzung der ersten Etappe verschiedene, direkt betroffene Gruppen wie Anwohner, Eltern usw. in geeigneter Form einbezogen werden. Der Projektgruppe ist es ein Anliegen, die ersten Elemente der Schulraumplanung nun möglichst bald dem Souverän vorzulegen. Bereits in diesen Tagen wird der Gemeinderat über die Sofortmassnahmen in Esslingen entscheiden und schon früh im neuen Jahr sollen die Eckwerte für den Planungskredit zur ersten Etappe feststehen. Der Gemeinderat wird die Begleitgruppe und die Bevölkerung informieren, sobald die nächsten Meilensteine erreicht sind.

 

6. Arbeitssitzung vom Dienstag, 1. Juni 2021
Bulletin

Begleitgruppe bewertet Strategieentwurf

Die Begleitgruppe Schulraumplanung Egg hat sich in einem Workshop am Dienstag 1. Juni intensiv mit dem Entwurf einer neuen Egger Schulraumstrategie befasst. Der vorgestellte Strategieentwurf stiess bei den Anwesenden insgesamt auf Zustimmung. Zahlreiche offene Punkte müssen im Rahmen einer Machbarkeitsstudie noch geklärt werden.

«Die einzelnen Standorte der Primarschulen werden beibehalten. Die Primarschulen und die Kindergärten bilden mit den entsprechenden Ergänzungsangeboten eine schulische Einheit. Alleinstehende Kindergärten werden in die nächstgelegenen Primarschulen integriert.» Mit diesen Kernaussagen fasste Planerin Rebekka Huber die Strategie bezüglich der künftigen Schulstandorte in Egg zusammen.

Mit verschiedenen Situationsplänen zeigte Rebekka Huber auf, welche Optionen durch die Projektgruppe geprüft und teilweise wieder verworfen worden waren. Schliesslich präsentierte sie der Begleitgruppe die favorisierte Strategie-Variante der Projektgruppe. Diese umfasst Neubauten in Esslingen sowie an den Standorten «Bützi» und «Zentrum». In Hinteregg schlägt die Projektgruppe die Beibehaltung eines kleinen Primarschulstandorts vor, wobei sie der Begleitgruppe auch die Varianten eines reinen Kindergartenstandorts sowie einen Ausbau zur Diskussion stellte.

Erste Priorität liegt in Esslingen

Aufgrund des grossen Neubauvolumens plant die Projektgruppe eine Etappierung der Projekte. Die erste Priorität liegt beim Standort Esslingen – die aktuellen Schülerzahlen und Schülerprognosen verlangen ein rasches Handeln. Ebenfalls zu einer ersten Etappe sollen Ersatzneubauten für Turnhallen und Kindergärten in den Anlagen «Bützi» und «Zentrum» gehören. Zu einem späteren Zeitpunkt würden Neubauten für die Primarschule ebenfalls im «Bützi» und im «Zentrum» dazukommen.
In der Diskussion mit der Begleitgruppe zeigte sich, dass eine Etappierung angesichts der anstehenden Projekte auf jeden Fall als sinnvoll erachtet wird. Auch die Priorität in Esslingen war in der Begleitgruppe unbestritten und die Beibehaltung des «status quo» in Hinteregg wurde von einer Mehrheit der Gruppe wohlwollend aufgenommen. Für kritische Voten sorgten vor allem die Pläne zur Veräusserung verschiedener Grundstücke. Und selbstverständlich stellte sich die Frage, wie die neuen Bauten letztlich finanziert werden können.

Gemeinderat informiert nach den Sommerferien

Die Projektgruppe war am Workshop mit der Schulpräsidentin, zwei Gemeinderäten sowie einem Mitglied der Schulpflege vertreten. Sie werden die Inputs der Begleitgruppe in die Projektgruppe einbringen. Voraussichtlich nach den Sommerferien wird der Gemeinderat über die ersten Eckpunkte der neuen Schulraumstrategie befinden und die Öffentlichkeit im Detail darüber informieren. Bis Ende Jahr soll dann im Rahmen einer Machbarkeitsstudie geprüft werden, ob und wie genau diese Strategie baulich umgesetzt werden kann.

 

 

5. Arbeitssitzung vom Dienstag, 9. März 2021
Bulletin

Grundstein für neue Schulraumplanung ist gelegt

Egg braucht schneller neuen Schulraum als ursprünglich angenommen. Dies ist das Resultat der Analyse, welche die Firma Metron AG der Begleitgruppe Schulraumplanung an ihrer letzten Sitzung vorgestellt hat. In Esslingen ist bereits ab diesem Sommer zu wenig Schulraum vorhanden. Die Schulpflege hat der Begleitgruppe erläutert, wie sie kurzfristig auf das Problem reagieren will.

Mit einem vierköpfigen Team aus Experten verschiedener Fachrichtungen hatte die Firma Metron AG die Schulraumsituation in der Gemeinde Egg in den vergangenen Monaten detailliert analysiert und alle Schulstandorte unter die Lupe genommen. Das Resultat ist ein fast 200 Seiten starker Bericht, der minutiös aufzeigt, wieviel Raum die Gemeinde Egg für eine zeitgemässe Schule mit den gesetzlich vorgeschriebenen Tagesstrukturen bis in zehn Jahren benötigt. An einer Videokonferenz mit der Begleitgruppe hat das neue Planerteam die wichtigsten Aussagen ihres Berichts vorgestellt.

Als Basis für ihre Analyse hat Metron die Schülerprognose aktualisiert. Dabei zeigte sich, dass Egg vor allem kurzfristig mehr Schulraum benötigt als bisher angenommen. So werden im Jahr 2025 drei Klassen mehr zu unterrichten sein als dies in der Planung aus dem Jahr 2019 ausgewiesen war. Die Schuleinheit Esslingen ist deshalb bereits diesen Sommer am Anschlag. Ebenfalls deutlich mehr Platz werden die Tagesstrukturen benötigen. Gemäss Metron fehlen dafür bis ins Jahr 2030 etwa 650 Quadratmeter. Zu wenig Raum gibt es auch im Schulhaus Güetli in Hinteregg. Dort fehlen für einen zeitgemässen Schulbetrieb etwa 150 Quadratmeter.

Esslinger Drittklässler kommen ins Bützi

Die Schulpflege informierte die Begleitgruppe ausführlich über die Situation in Esslingen. Dort müsste ab diesem Sommer eine zusätzliche Klasse geführt werden, was aus Platzgründen jedoch nicht möglich ist. Diese Tatsache hat Schulleitungen und Behörde dazu veranlasst, kurzfristig nach praktikablen Lösungen zu suchen. Schnell wurde klar, dass der noch vorhandene Schulraum im neuen Pavillon Bützi genutzt werden muss, bevor eine allfällige Erweiterung des Schulraums in Esslingen im Rahmen der gemeindeweiten Schulraumplanung umgesetzt werden kann.

Dies hat zur Folge, dass alle künftigen Drittklässler aus Esslingen (17 Schülerinnen und Schüler) das Schuljahr 21/22 zusammen in einer gemeinsamen Jahrgangsklasse im neuen Bützi-Pavillon in Egg verbringen werden. Die direkt Betroffenen Eltern wurden am 22. März 2021 im Rahmen eines Elternabends informiert. Als weitere Sofortmassnahme hat die Schulpflege beschlossen, den Kindergarten Rietwis per Schuljahr 21/22 zu reaktivieren. Die Eltern werden im Rahmen der ordentlichen Zuteilung darüber informiert.

Trägerverein für Doppelturnhalle gegründet

Neben den Schwerpunkten in Esslingen, Hinteregg und im Bereich der Tagesstrukturen gibt der Analysebricht auch Auskunft über die Turnhallenproblematik. Aus dem Schulbetrieb ergibt sich kein Bedarf an zusätzlichen Turnhallen. Allerdings müssen zwei Hallen aufgrund ihres baulichen schlechten Zustands ersetzt werden. Die zusätzlichen Bedürfnisse der Vereine sind dabei noch nicht eingerechnet.

Die Vereine sind über die IG Sport in der Begleitgruppe vertreten und können ihre Bedürfnisse nun in einem nächsten Planungsschritt einbringen. Im Rahmen der Videokonferenz haben ihre Vertreter die Begleitgruppe ausserdem darüber informiert, dass die Sportvereine auf eigene Rechnung eine Doppelturnhalle auf dem Schürwies-Areal bauen möchten. Sie haben zu diesem Zweck einen Trägerverein gegründet. Der Verein klärt nun in einer ersten Phase mit dem Amt für Abfall, Wasser, Energie und Luft (Awel), ob eine solche Halle am geplanten Standort überhaupt bewilligungsfähig wäre. Die Sportvereine stellen darum Baugespanne auf, damit das Awel die Sachlage prüfen und bewerten kann. Falls vom Awel «grünes Licht» kommt, ginge es darum, ein konkretes Projekt auszuarbeiten. Der Gemeinderat hat diesbezüglich noch keinen Beschluss gefasst, steht dem Vorhaben aber grundsätzlich wohlwollend gegenüber.

Strategie soll spätestens Ende Jahr feststehen

Die Analyse der Metron AG mit der Zusammenstellung des Raumbedarfs wurde von der Begleitgruppe positiv aufgenommen. Nach kurzer Diskussion war sich die Gruppe einig, dass auf Basis dieser Zahlen nun eine konkrete Schulraumstrategie entwickelt werden soll. Diese muss aufzeigen, an welchen Standorten wieviel neuer Schulraum gebaut werden soll. Weil die Schülerzahlen noch schneller steigen als erwartet, muss diese Strategie bald vorliegen. Die Projektgruppe wird mit Unterstützung von Metron mehrere Strategievarianten ausarbeiten, welche noch vor den Sommerferien in einem Workshop mit der Begleitgruppe diskutiert werden können. Nach einer Bereinigung und Machbarkeitsprüfung soll der Gemeinderat noch in diesem Jahr über die Strategie entscheiden. Die Begleitgruppe bleibt in diesen Prozess bis zum Behördenentscheid einbezogen.

 

6. März 2020

Die Gemeinde Egg sucht eine fachlich gut ausgewiesene Person mit nachgewiesener Erfahrung zur künftigen Begleitung der Schulraumplanung.

Die Gemeinde Egg sucht eine fachlich gut ausgewiesene Person mit nachgewiesener Erfahrung zur künftigen Begleitung der Schulraumplanung. Neben einer Überprüfung, Ergänzung und Aktualisierung der bestehenden Grundlagen ist ein Gesamtkonzept für die künftige Nutzung und Weiterentwicklung der bestehenden Schulanlagen zu entwickeln und in geeigneter Form als Grundlage für künftige Bauvorhaben festzusetzen. Die Planerwahl wird in zwei Stufen durchgeführt. Die Eingaben zur ersten Stufe (Präqualifikation) sind bis am 26. März an die Gemeinde Egg einzureichen. Details und Unterlagen finden Sie hier.


Begleitgruppe Schulraumplanung Egg

4. Arbeitssitzung vom Dienstag, 11. Februar 2020
Bulletin

Gemeinderat sucht neuen Schulraumplaner

Der Gemeinderat Egg reagiert auf die Skepsis der Begleitgruppe gegenüber dem eingesetzten Planer. Er hat entschieden, in einer öffentlichen Ausschreibung einen neuen Auftrag für die fachliche Begleitung der Schulraumplanung zu vergeben. An ihrer letzten Sitzung vom 11. Februar hat sich die Begleitgruppe Schulraumplanung Egg auf Eckpunkte geeinigt, welche sie dem neuen Planer als Ausgangslage mitgeben will.

Als Fazit der vorangehenden Sitzungen stand die Erkenntnis, dass die Skepsis gegenüber dem bisherigen Planer in der Begleitgruppe weit verbreitet ist. Seinen Verbleib in der Projektgruppe werteten die meisten Begleitgruppenmitglieder als Hypothek für das neue Projekt. Der Gemeinderat Egg hat nun auf diese Bedenken reagiert und entschieden, der Projektgruppe und der Begleitgruppe für die Schulraumplanung einen neuen Planer zur Seite zu stellen.

Der Gemeinderat legt Wert auf die Feststellung, dass er mit den erbrachten Leistungen des bisherigen Planers, Stratego AG, zufrieden ist. Die Vorgaben der Behörde sind vorbehaltlos erfüllt worden. Die Stratego AG hat in der Vergangenheit einige Projekte der Gemeinde begleitet. Darunter sind zum Beispiel auch die Umgestaltung des Gebietes Rietwis sowie die Dorfumfahrung Egg, welche in der Bevölkerung stark divergierende Reaktionen ausgelöst haben. Somit besteht eine kontroverse Vorgeschichte, welche politisch eine Belastung darstellt. Der Neustart der Schulraumplanung soll jedoch, wie vom Gemeinderat bereits kommuniziert, auf einer grünen Wiese beginnen. Als vertrauensbildende Massnahme wird darum ein neuer Planer eingesetzt.

Submission für neuen Auftrag geplant

Der neue Auftrag für die fachliche Begleitung der Schulraumplanung Egg wird in einem öffentlichen Submissionsverfahren vergeben. Die Kriterien, nach denen der neuen Planer oder die neue Planerin ausgewählt wird, werden durch einen externen Fachmann aus Zürich geprüft, sodass eine unabhängige und transparente Auswahl sichergestellt ist. Das Submissionsverfahren wird anfangs April starten. Nach einer zwingend notwendigen Einarbeitungsfrist wird der neue Planer den Faden in Sachen Schulraumplanung mit der Begleitgruppe nach den Sommerferien wieder aufnehmen.

Eckwerte als Planungsgrundlage festgelegt

Im Rahmen ihrer Sitzung vom 11. Februar hat sich die Begleitgruppe auf Eckwerte geeinigt, die sie dem neuen Planer als Arbeitsgrundlage mitgeben will. Als Ausgangswert für die weiteren Schritte nimmt man an, dass die Gemeinde Egg bis ins Jahr 2030 Schulraum für 960 - 1000 Kinder benötigt. Sowohl im Dorfzentrum von Egg als auch in Hinteregg ist Bedarf an zusätzlichem Schulraum vorhanden. Esslingen gelangt zwischenzeitlich an die Kapazitätsgrenze, langfristig aber ist der Schulraumbedarf mit der bestehenden Infrastruktur gesichert.

Die Tagesschule wird in die neue Schulraumplanung mit einbezogen. Der Raum- und Infrastrukturbedarf für die Tagesschule wird evaluiert und transparent ausgewiesen. Ob der Raum tatsächlich Teil eines neuen Projekts wird, ist noch nicht entschieden.

Zustandsübersicht der Liegenschaften wird aktualisiert

Im Zuge ihrer Diskussionen hat die Begleitgruppe ausserdem festgestellt, dass die Übersicht über den baulichen Zustand der Schulliegenschaften noch Lücken aufweist. Die Projektgruppe hat deshalb einem Architekturbüro den Auftrag erteilt, eine solche Übersicht zu erstellen. Damit wird eine qualitativ noch bessere Aussage darüber möglich, mit welchen Instandstellungskosten in den kommenden Jahrzehnten ohnehin gerechnet werden muss, auch wenn Egg auf neue Schulhausbauten verzichten würde. Diese Übersicht wird noch vor den Sommerferien vorliegen und im Rahmen der nächsten Begleitgruppensitzung diskutiert werden. Damit werden dem neuen Planer alle relevanten Eckwerte für nächste konkrete Schritte in der Schulraumplanung Egg vorliegen.

 

Begleitungruppe Schulraumplanung Egg

3. Arbeitssitzung vom Dienstag 3. Dezember 2019
Bulletin


Skepsis gegenüber dem Planer

Skepsis gegenüber dem eingesetzten Planer und eine Kontroverse rund um die Einbindung von Tagesschulen: Die Begleitgruppe Schulraumplanung Egg hat an ihrer letzten Sitzung vom 3. Dezember «heisse» Themen offen verhandelt.

Die Diskussion um die Zusammensetzung der Projektgruppe wurde an der vorletzten Sitzung der Begleitgruppe aus Zeitgründen unterbrochen. An der letzten Sitzung nun wurde sie fertig geführt. Als Fazit steht die Erkenntnis, dass die Skepsis gegenüber dem bisherigen Planer in der Begleitgruppe weit verbreitet ist. Sein Verbleib in der Projektgruppe werten die meisten Begleitgruppenmitglieder als Hypothek für das neue Projekt. Die Begleitgruppe stellt sich auf den Standpunkt, dass a) der bisherige Planer in der Projektgruppe Schulraumplanung ausgewechselt werden sollte, dass b) die Rolle des neuen Planers genau zu definieren ist, und dass c) der neue Planer mittels Submission eingesetzt wird. Der Gemeinderat wird sich im kommenden Januar mit dem Thema befassen und das weitere Vorgehen beschliessen. Er informiert die Begleitgruppe an deren nächsten Sitzung vom 11. Februar und anschliessend die Öffentlichkeit über den Entscheid.

An der Tagesschule scheiden sich die Geiste

Für kontroverse Diskussionen sorgte die Frage, ob und wie die Tagesschulen in der Schulraumplanung berücksichtigt werden sollen. Am Thema scheiden sich die Geister. Und in der Tat ist es eine Herausforderung, die Tagesschulen in die Planung einzubinden, ohne ein Präjudiz für oder gegen deren Einführung zu schaffen. Die Begleitgruppe wünscht sich hier einen konkreten Umsetzungsvorschlag. Einigkeit besteht im Anspruch, volle Transparenz zu gewährleisten. Wenn Schulraum für die Tagesschule eingeplant wird, so muss das auf jeden Fall klar ausgewiesen werden.

Optimalen Handlungsspielraum schaffen

Des Weiteren lieferte die Projektgruppe neue Unterlagen und Antworten zu offenen Themen aus dem Fragekatalog der Begleitgruppe. Einiges wurde geklärt, womit insgesamt ein nächster Schritt hin zur angestrebten Einigung auf die Grundlagenzahlen vollzogen werden konnte. Offen blieb unter anderem die Frage, ob in der aktuell laufenden Revision der Bau- und Zonenordnung für öffentliche Zonen die maximale Ausnützung vorgesehen ist. Angesichts des Volumens und der Bedeutung des Schulraumprojekts sei es wichtig, schon jetzt die Rahmenbedingungen für optimalen Handlungsspielraum zu schaffen, so der Tenor aus der Begleitgruppe.
 

Begleitungruppe Schulraumplanung Egg

2. Arbeitssitzung vom Dienstag 22. Oktober 2019
Bulletin


Fragekatalog zu den Grundlagendaten liegt vor

Die Begleitgruppe Schulraumplanung Egg hat an ihrer letzten Sitzung die Bewertung des Grundlagenmaterials abgeschlossen und einen Fragekatalog zu Handen der Projektgruppe formuliert. Ausserdem wurde über die Zusammensetzung der Projektgruppe diskutiert. Diese Diskussion wird in der nächsten Sitzung fortgesetzt.


Mit den Themen «Infrastruktur» und «Schulform» hat die Begleitgruppe Schulraumplanung an ihrer Sitzung vom 22. Oktober 2019 die Bewertung der Grundlagendaten abgeschlossen. Auf Basis der zahlreichen Inputs aus der Gruppe wurde ein Fragekatalog zu Handen der Projektgruppe erstellt. Die Erhebung und Präsentation der Schülerzahlen pro Einzugsgebiet oder der Einbezug des Modells «Tagesschulen» in die Planungsgrundlagen sind nur zwei der zahlreichen Punkte, mit denen sich die Projektgruppe nun auseinandersetzen wird. Anlässlich der nächsten Begleitgruppensitzung wird die Projektgruppe darlegen, wie sie mit diesen Inputs aus der Bevölkerung umgehen wird.

Im Zuge der Grundlagenbewertung wurde auch ein möglicher Zusammenhang zwischen dem geplanten Provisorium im Bützi und der Schulraum-Gesamtplanung thematisiert. Verschiedene Mitglieder der Begleitgruppe äusserten Bedenken, dass mit dem Provisorium Bützi ein Präjudiz für den Standort eines zentralen Neubaus geschaffen würde. Die Vertretungen der Projektgruppe hielten daraufhin fest, dass sie mit dem Provisorium keine Fakten schaffen, sondern nur sicherstellen wollten, dass der aktuelle Schulraumbedarf gedeckt sei. Ausserdem stelle die Überbrückungslösung sicher, dass für die Ausarbeitung eines neuen Projekts genügend Zeit bleibe. Wenn sich herausstellen sollte, dass der Raum an anderer Stelle benötigt werde, solle er auch dort gebaut werden.

Schliesslich widmete sich die Begleitgruppe der Thematik «Zusammensetzung der Projektgruppe». Die Diskussion musste aus Zeitgründen unterbrochen werden. Als erstes Zwischenfazit zeigte sich, dass die Rolle des Planers im weiteren Verlauf der Schulraumplanung und der Vergabeprozess für die nächsten Planungsschritte geklärt werden sollten. Die Diskussion wird an der nächsten Sitzung der Begleitgruppe am 3. Dezember 2019 fortgesetzt.

Begleitgruppe Schulraumplanung Egg

1. Arbeitssitzung vom Dienstag 17. September 2019
Bul
letin

Grundlagendaten auf dem Prüfstand

Die Begleitgruppe Schulraumplanung Egg hat sich an ihrer letzten  Sitzung intensiv mit dem vorliegenden Grundlagenmaterial beschäftigt. Die Bewertung der präsentierten Zahlen und Fakten ist noch nicht abgeschlossen und wird in der nächsten Sitzung fortgesetzt.

Wie entwickeln sich die Schülerzahlen der Gemeinde Egg in den nächsten zehn Jahren? In welchem baulichen Zustand befinden  sich die bestehenden Schulliegenschaften? Und welche Ausbaumöglichkeiten bietet sich an den einzelnen Standorten? Die Antworten auf diese Fragen bilden das Fundament für die Planung von neuem Schulraum.

Das Thema «Grundlagen» stand darum  im Zentrum  der ersten Arbeitssitzung  der Begleitgruppe Schulraumplanung  Egg vom  17. September  2019. Dies, nachdem  die Zweifel am vorhandenen Zahlenmaterial durch  die Begleitgruppe  im Rahmen der konstituierenden Sitzung vom vergangenen Juni zum vordringlichsten Thema bestimmt worden war.

Die Schulraumplanung soll von Grund auf neu erarbeitet werden. Ideen und Perspektiven lassen sich aber auf jeden Fall nur auf dem Sockel von breit akzeptierten Grundlagendaten entwickeln. solange diese Akzeptanz nicht erreicht ist, baut man auf Treibsand.

Heinrich Uster von Stratego4, welcher dem Gemeinderat Egg in Sachen Schulraumplanung als Berater zur Seite steht und die bislang vorliegenden Grundlagendaten erarbeitet hat, war als Gastreferent eingeladen. Er präsentierte die Grundlagen und stellte sich danach den Fragen aus der Begleitgruppe.

Im Anschluss an diese Präsentations- und Fragerunde machte sich die Begleitgruppe an die Plausibilisierung und Bewertung der Grundlagen. Dieser Prozess ist noch im Gang. Er wird an der nächsten Sitzung vom 22. Oktober 2019 fortgesetzt.

Ziel ist es, zu definieren, was die Begleitgruppe an zusätzlichen Erhebungen oder an Massnahmen braucht, damit die Grundlagendaten solide genug sind, um darauf «bauen» zu können. Erst dann geht es in die konkrete Entwicklungsphase.

Begleitgruppe Schulraumplanung Egg
Konstituierende Sitzung vom Dienstag, 25. Juni 2019


Die Begleitgruppe wünscht einen detaillierteren Bedarfsnachweis

Nach dem Nein des Souveräns zur Erweiterung der Schulanlage Bützi im November 2018 hatte der Gemeinderat Ende April 2019 angekündigt, mit der Schulraumplanung «auf der grünen Wiese» zu beginnen und die Bevölkerung mittels Begleitgruppe in den Prozess einzubinden. Genannte Begleitgruppe hat sich mittlerweile konstituiert. Sie umfasst 20 Personen und hat ihre Arbeit bereits aufgenommen.

Eine neunköpfige Projektgruppe, zusammengesetzt aus Mitgliedern von Gemeinderat, Gemeindeverwaltung, Schulpflege und Schulleitung, ist vom Gemeinderat Egg damit beauftragt worden, die Grundlagen für eine neue und mehrheitsfähige Vorlage zu erarbeiten. In diesem zweiten Anlauf soll die Bevölkerung besser in den Planungsprozess mit eingebunden werden. Eine Begleitgruppe, die aus je einer Vertreterin oder einem Vertreter möglichst vieler Anspruchsgruppen aus der Gemeinde besteht, soll als Bindeglied zwischen Projektgruppe und Bevölkerung agieren und die Bedürfnisse der Einwohnerinnen und Einwohner von Egg frühzeitig in den Planungsprozess einbringen. Ausserdem werden die Mitglieder der Begleitgruppe durch das Projektteam regelmässig über den Stand der Arbeiten informiert und können sich dazu äussern. Damit wird die Begleitgruppe zu einem so genannten «Echoraum», in dem sich die Planer frühzeitig mit der Bevölkerung über Lösungsansätze austauschen können.

Begleitgruppe umfasst 20 Personen

Am 25. Juni hat sich die Begleitgruppe konstituiert. Sie umfasst 20 Personen aus verschiedenen Anspruchsgruppen der Gemeinde (vgl. Auflistung am Ende des Bulletins). Das grosse Interesse ist ein Beleg für die Bedeutung des Projekts und gleichzeitig eine Chance für die Projektgruppe, viele verschiedene Perspektiven und Anliegen mitzubekommen, um am Ende eine möglichst bedürfnisgerechte Vorlage zu erarbeiten.

Nach der Konstituierung präsentierte Gemeinderat und Projektgruppenleiter Christoph Domeisen den Mitgliedern der Begleitgruppe nochmals jenes Zahlenmaterial, das der Projektgruppe als Basis für den Neustart dienen soll. Demnach fehlen in Egg bereits heute über 400 Quadratmeter Schulraum. Der Schulbetrieb kann nur mit Notmassnahmen aufrechterhalten werden. Ab dem Schuljahr 2020/21 sind provisorische Bauten unabdingbar und ab 2025 fehlen bereits über 1'000 Quadratmeter Schulfläche. Grund für dieses Manko ist die Bevölkerungszahl, welche in Egg bis im Jahre 2030 voraussichtlich auf 10'000 ansteigen wird.

Viele Fragen zu den Grundlagen

Nach dieser Präsentation machten sich die Mitglieder der Begleitgruppe daran, die wichtigsten Themen und ihre brennenden Anliegen zu benennen und zu priorisieren. Dabei zeigte sich sehr bald, dass es dem Gemeinderat bis heute nicht gelungen ist, den Bedarfsnachweis verständlich und detailliert genug zu vermitteln. Fragen zu den Grundlagen stehen darum ganz oben auf der durch die Gruppe priorisierten Themenliste. Die Transparenz bezüglich Berechnungsmethodik und die Nachvollziehbarkeit des bisher offen gelegten Zahlenmaterials werden als unzureichend bewertet. Ausserdem wünscht sich die Gruppe eine detailliertere Grundlagenanalyse, welche für jeden einzelnen der vier Standorte Hinteregg, Bützi, Zentrum und Esslingen den Ist-Zustand, den künftigen Bedarf und die Entwicklungsmöglichkeiten ausweist.

Weiter zu reden geben wird im Begleitgruppenprozess die Zusammensetzung der Projektgruppe, das Für und Wider einer Zentralisierung des Schulraums oder die Frage, wie flexibler Schulraum zu gestalten ist. Und für Emotionen sorgte auch der Beschluss des Gemeinderats, auf dem Areal des Schulhauses Bützi im Sommer 2020 ein Provisorium aufzustellen. Einzelne Mitglieder der Begleitgruppe befürchten durch diese Sofortmassnahme ein Präjudiz für die künftige Schulraumplanung.

Vertrauen in Berechnungsgrundlagen herstellen

Die Begleitgruppe wird sich bis Juni 2020 regelmässig treffen und die Themen diskutieren. An der nächsten Sitzung Mitte September stehen die Berechnungsgrundlagen im Fokus. Denn diese bilden gewissermassen das Fundament einer neuen Planung. Projekt- und Begleitgruppe müssen also einen Weg finden, das Vertrauen in die Zahlen und Berechnungen herzustellen.

Zusammensetzung Begleitgruppe Schulraumplanung Egg

▪ SVP Egg (Marcel Heimann)
▪ FDP Egg (Patrick Thalparpan)
▪ CVP Maur Egg (Stefan Gnädinger)
▪ SP Egg (Barbara Collet)
▪ GLP Maur-Egg (Urs Oetiker),
▪ Pro Egg (Thierry Brunschwig)
▪ Überparteiliches Komitee (Harry Hungerbühler)
▪ Musikschule Pfannenstiel (Kerstin Wiehe)
▪ Elternrat Zentrum (Erich Kunz)
▪ Elternrat BüHiKi (Rahel Hürzeler)
▪ Elternrat Esslingen (Fabian Engler)
▪ Gewerbeverein Egg (Elisabeth von Mann)
▪ IG Sport (Christoph Kaufmann)
▪ IG Schule im Dorf (Julia Bachmann)
▪ IG ODEgg und Brunnengenossenschaft Oberdorf (Stefan Jan)
▪ Expats Egg (Nadia D. Mills)
▪ Gruppe Transparenz in der Politik (Heinz Vollenweider)
▪ Transition Egg (Heidi Church)
▪ Projektgruppe Schulraumplanung (Christoph Domeisen)
▪ Projektgruppe Schulraumplanung (Beatrice Gallin)

Vorgeschichte

Im Rahmen der Ortentwicklung Egg haben der Gemeinderat und die Schulpflege die Schulraumplanung wieder aufgenommen. Aufbauend auf den umfangreichen Abklärungen der Schulpflege haben beide Behörden eine gemeinsame Planungskommission eingesetzt. Diese hat die vorhandenen Daten aufgearbeitet und schlussendlich einen Masterplan erstellt. Dieser wurde der Bevölkerung anlässlich Informationsveranstaltung vorgestellt.

Im Gemeindehaus fand bis zum 20. März 2017 zudem eine Ausstellung statt. Am 11. Februar und 11. März 2017 von 10 - 15 Uhr standen die Mitglieder der Arbeitsgruppe für Auskünfte vor Ort zu Verfügung. Diese Möglichkeit wurde rege genutzt.

1. Etappe: Schulanlage Bützi

Die Gemeindeversammlung hat nun am 30. März 2017 einem Planungskredit über
Fr. 245'000 für die Schulraumerweiterung im Bützi zugestimmt. Das Protokoll finden Sie im Anhang.

Inzwischen hat der Gemeinderat weitere Entscheide gefällt und zwei begleitende Kommissionen eingesetzt. Diese haben nun die Ausschreibung der Schulraumerweiterung vorbereitet und die Bedürfnisse aller involvierten Personen, vor allem der Lehrpersonen, aufgenommen. Die Bau- und Raumbeschriebe sind erstellt und vom Gemeinderat genehmigt worden. Das Präqualifikationsverfahren wurde am 21. Juli 2017 gestartet. Nachfolgend finden Sie die entsprechenden Beschlüsse des Gemeinderates: Nr. 106, Nr. 134 und Nr. 238.

Innert Frist wurden acht Teilnahmeanträge eingereicht. Mit Beschluss Nr. 332 hat der Gemeinderat am 2. Oktober 2017 die fünf Totalunternehmer bestimmt, welche für die zweite Stufe des Gesamtleisterwettbewerb zugelassen werden. Es sind dies:

▪ Allreal Generalunternehmung AG, Zürich
▪ Erne Holzbau AG, Stein
▪ Implenia Schweiz AG, Dietikon
▪ Schaerholzbau AG, Altbüron
▪ Steiner AG Generalunternehmung, Zürich

Für die Anpassung des Schulhauses Güetli wurde für die Architekturleistungen ein Einladungsverfahren durchgeführt. Das Büro Rohrer + Partner AG, Egg, wurde schlussendlich ausgewählt (Beschluss Nr. 333 vom 2. Oktober 2017). Auch hier gilt der Eingabetermin vom 26. Februar 2018 um ein Bauprojekt mit Kostenermittlung einzureichen.

Als Siegerprojekt hat der Gemeinderat die Eingabe der Firma Erne Holzbau AG ausgewählt. Am Donnerstag 21. Juni 2018 fand im Hirschensaal die entsprechende Bevölkerungsinformation statt. Nachfolgend finden Sie die entsprechende Präsentation.

Abstimmung findet am 25. November 2018 statt

Die geplante Abstimmung vom 23. September 2018 über die Schulraumerweiterung der Schulanlage Bützi musste aufgrund eines Beschwerdeverfahrens verschoben werden. Ein unterlegener Mitbewerber hatte beim Verwaltungsgericht des Kantons Zürich Beschwerde gegen den Vergabeentscheid eingelegt.

Das Gericht hat nun zugunsten der Gemeinde Egg entschieden und die Beschwerde abgewiesen. Der Gemeinderat hat nun den Abstimmungstermin auf den 25. November 2018 festgelegt.

Ausstellung im Gemeindehaus

Im Foyer des Gemeindehauses Egg ist ab Montag 24. September 2018 während den ordentlichen Öffnungszeiten der Gemeindeverwaltung eine Plakatausstellung zur geplanten Schulraumerweiterung im Bützi zu sehen.

Gemeindeabstimmung vom 25. November 2018: Baukredit wurde abgelehnt

Die Stimmberechtigten von Egg lehnten den Baukredit ab. Untenstehnd finden Sie das entsprechende Abstimmungsprotokoll.

Weiteres Vorgehen

Am Mittwoch 10. April 2019 findet eine öffentliche Informationsveranstaltung für das weitere Vorgehen in Sachen Schulraumplanung statt. Nachfolgend finden Sie die Einladung. Wir freuen uns auf eine rege Teilnahme.

Haben Sie Fragen zur Schulraumplanung? Wenden Sie sich bitte an E-Mail oder Tel. 043 277 11 70.

News

DatumName

Zugehörige Objekte

Name Download

Dies könnte Sie ebenfalls interessieren: